• トップ・
    注文住宅
  • 土地・
    分譲住宅
  • リフォーム
  • スウェーデン
    ヒルズ
  • 提携法人
    はこちら
  • オーナー
    様へ
  • 企業情報・
    採用情報

セントラルアベニュー荒川本郷

物件所在地 茨城県稲敷郡阿見町大字荒川本郷字北古辺
土地面積 / 建物面積 200.33㎡~221.76㎡
販売価格 11,200,000円~12,600,000円
販売形態 建築条件付

見学希望・資料請求はこちら

アクセス

  • 公共施設

    本郷親水公園まで(約6分) 阿見町本郷ふれあいセンターまで(約13分) 

  • 教育施設

    阿見きらり保育園まで(約4分) 荒川沖幼稚園まで(約12分) 阿見町立本郷小学校まで(約9分) 阿見町立朝日中学校まで(約9分)

  • 商業施設

    カインズ阿見店まで(約9分) ベイシアFoodsPark阿見店まで(約8分) セブンイレブンまで(約12分) 

  • 金融機関

    茨城県信用組合まで(約20分) 水戸信用金庫まで(約22分) 

  • 医療施設

    なるしま内科医院まで(約11分) 茨城県立医療大学付属病院まで(車で約8分/約3.7km) 東京医大茨城医療センターまで(約10分/約5.0km)

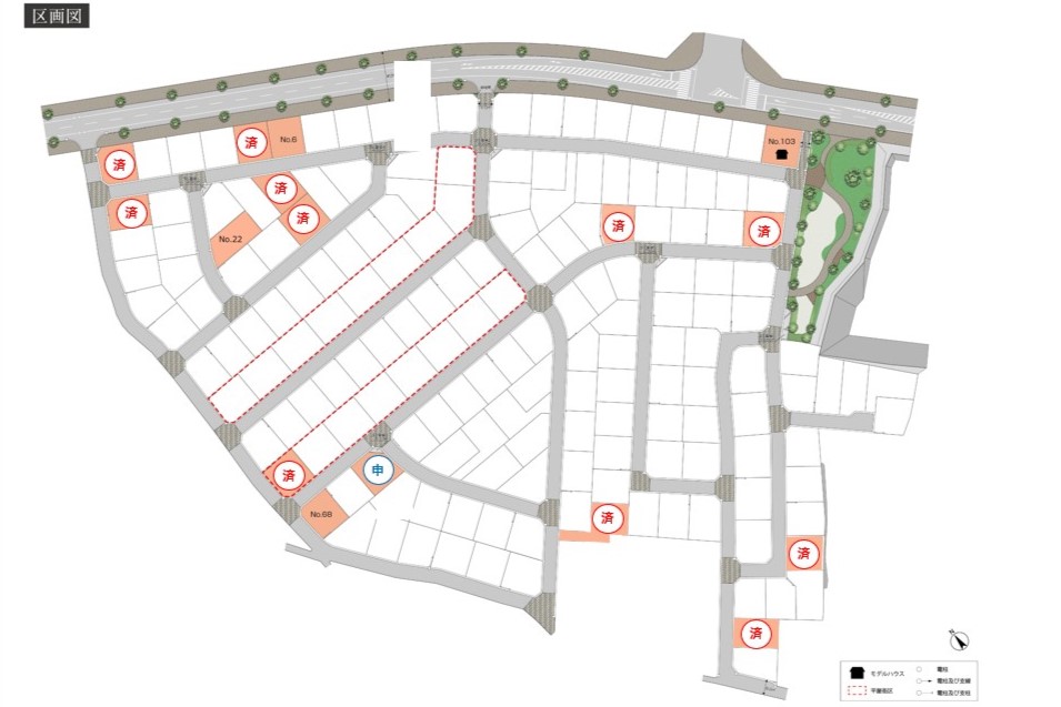
物件概要

区画 土地面積/㎡ 販売価格/円 備考

1

ーーーーーーーーーー

ーーーーーーーーーー 

ご契約済み
5 ーーーーーーーーーー ーーーーーーーーーー ご契約済み
6

200.33

12,400,000 

 
12 ーーーーーーーーーー ーーーーーーーーーー

ご契約済み

22

221.76 

12,600,000 

 
26

ーーーーーーーーーー

ーーーーーーーーーー ご契約済み
27 ーーーーーーーーーー ーーーーーーーーーー ご契約済み
68

204.43 

11,200,000 

 
70 ーーーーーーーーーー ーーーーーーーーーー お申込済み
114 ーーーーーーーーーー ーーーーーーーーーー ご契約済み
132 ーーーーーーーーーー ーーーーーーーーーー ご契約済み
162 ーーーーーーーーーー ーーーーーーーーーー ご契約済み
166 ーーーーーーーーーー ーーーーーーーーーー ご契約済み

※スマートフォンの方は横にスクロールしてください。

 

 

物件所在地 茨城県稲敷郡阿見町大字荒川本郷字北古辺1935番14他(地番)
 

お車でお越しの際は「荒川本郷1953」付近でご検索ください。

土地面積 200.33㎡~221.76㎡
私道負担面積 なし
価格 11,200,000円~12,600,000円
交通 JR常磐線「荒川沖」駅まで徒歩約25分~27分
敷地権利 所有権
その他金額 水道加入金:88,000円(税込) ※20mmの場合
地目 宅地
都市計画区域 市街化区域
用途地域 第1種低層住居専用地域、第1種中高層住居専用地域
建ぺい率/容積率 40%/60%・80%/200%
道路 公道幅員6.0m  (アスファルト舗装)
販売区画数 3区画(総区画数175区画 内 弊社販売区画数20区画)
設備等 公営水道・公共下水道・都市ガス  ※敷地内に電柱・支線あり
販売形態 建築条件付
法令制限 都市計画法(地区計画) 
造成完了予定日
引渡日 即可
特記事考  
備考

※まちなみガイドラインあり


※建築条件付土地:土地の売買契約締結後3ヶ月以内に、売主と建築工事請負契約を結ぶことを販売条件と致します。この期間内に建物を建築しないことが確定した時、あるいは建物の工事請負契約が締結されなかった場合は、土地売買契約は白紙解除となり、受領した金銭は買主に無利息にて返金致します。

※管理組合法人にご加入いただきます。 一区画当たり管理組合入会金:50,000円(一時金)管理組合費は1,800円/月を年度の初めに一括徴収(21,600円/年)とさせていただきます。設立総会から5年分(108,000円/区画)は、購入時に納入いただきます。
本分譲地では、快適で良好な住環境を皆様に提供する為に、まちなみガイドラインを設けております。

その他  
売主 株式会社スウェーデンハウス
国土交通大臣許可(特-4)第13225号 / 国土交通大臣免許(8)第4255号
(公社)東京都宅地建物取引業協会会員 /(公社)全国宅地建物取引業保証協会会員 /(公社)首都圏不動産公正取引協議会加盟

株式会社スウェーデンハウス
本社:〒154-0004 東京都世田谷区太子堂4-1-1 キャロットタワー23階
TEL:03-5430-7620
取引態様 売主
取引条件の有効期限 2025年12月22日
物件登録日または更新日 2024年12月2日
次回更新予定日 2025年12月22日
取り扱い支社・支店 千葉支店
問い合わせ先 国土交通大臣免許(8)第4255号
株式会社スウェーデンハウス 千葉支店
〒273-0005 千葉県船橋市本町2丁目27番25号 太陽生命船橋ビル6階
電話番号:047-431-5800 担当者:海宝(カイホウ)/磯村

見学希望・資料請求はこちら